Tupalantie 2 04400 Järvenpää
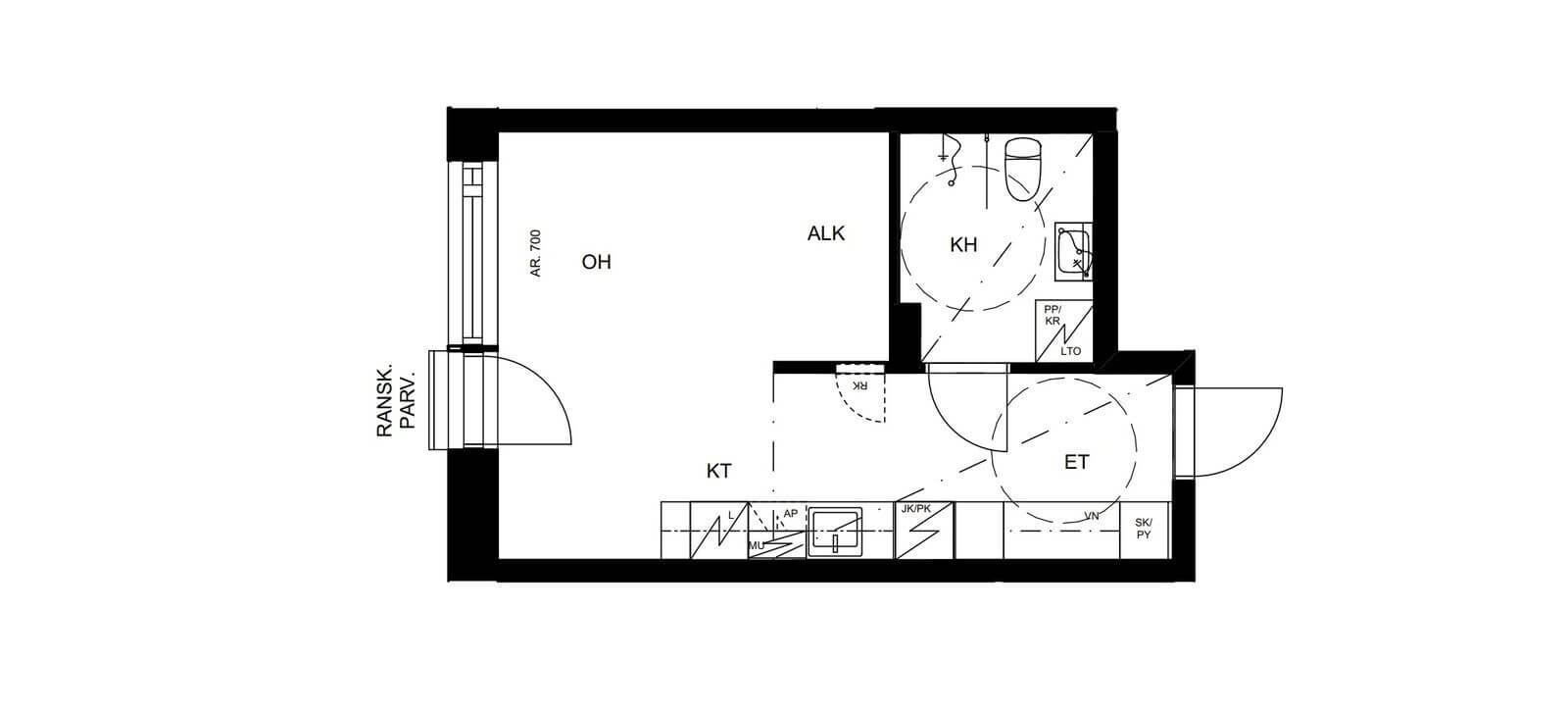
Valoisa yksiö upealla näkymällä Järvenpään maamerkkitalon 8. kerroksessa. Moderni ja tyylikäs kokonaisuus, jossa neliöt käytetty tehokkaasti hyödyksi. Asuintilojen lattiamateriaalina on lautaparketti ja kylpyhuoneessa keraaminen laatta. Kylpyhuoneessa on sähköinen mukavuuslämmitys sekä tilavaraus pesukoneelle ja kuivausrummulle. Keittiön varusteluun kuuluvat keraaminen liesitaso, jääkaappipakastin, astianpesukone ja integroitu mikroaaltouuni. Ikkunoissa on sälekaihtimet. Huoneistossa on ranskalainen parveke sekä koneellinen tulo-poistoilmanvaihto varustettuna lämmön talteenotolla ja huoneistokohtaisella säädöllä. Käytössäsi on myös taloyhtiön saunaosasto ja kattoterassi 19. kerroksessa hulppein järvinäkymin ilta-aurinkoon.
As Oy Järvenpään Tupalankulma on valmistunut joulukuussa 2017. Kaukolämpö. Muita yhteiskäytössä olevia tiloja ovat mm. ulkoiluvälinevarasto, lastenvaunuvarasto, irtaimistovarastot, sekä kuivaushuone tornitalon 2. kerroksessa. Taloyhtiö on täysin savuton, tupakointikielto koskee asuntojen lisäksi myös parvekkeita ja terasseja.
Toistaiseksi voimassa oleva vuokrasopimus, vuokra-aika vähintään 12 kk. Vakuus 1-2 kk. Vuokralainen tekee oman sähkösopimuksen sekä sitoutuu ottamaan kotivakuutuksen. Lemmikit sopimuksen mukaan.
Vuokraamisen arvoinen kohde!